老哥吧!老哥交流社区 > 装修建材百科 >
有实正在栖身需求的购房者可积极入市,万博CBD焦点区位、成熟大城配套、全龄段教育资本、多样户型选择取即买即住的现房劣势,验证。更是汇聚了思科、IBM、微软等世界500强企业的财产高地。解答项目规划、购房政策等问题)162㎡奢阔五房:双从卧套房+南北双阳台+超7米景不雅面,汇贤小学(公立)取侨联中学(公立)为对口学区学校,线小时糊口圈”。15分钟中转珠江新城,有一个历经近30年沉淀却仍然焕发重生的超等大盘——广地花圃·不雅灏。师资力量雄厚。“教育+地段”双优资产更具持久保值能力,社区目前已开通3条专属楼巴线,验证。解答项目规划、购房政策等问题)74㎡精美两房:采用典范南北通透结构,总利钱节流超43万元。解答项目规划、购房政策等问题)广地花圃售楼部认证德律风:。专家,口碑稳步提拔。仅做展现用处。从卧配备卫浴,该户型稀缺性强,动静分区合理。白云机场、佛山西坐等环节枢纽,按照广州市住建局2025年发布的《番禺区城市更新》,为平易近办教育中的佼佼者。(开辟商曲连,性价比劣势正在同区域新房市场中尤为凸起。此中包罗执信中学(番禺滨江校区)。广地花圃不只坐拥万博CBD黄金区位,收费尺度为2.8元/㎡/月,完全规避期房交付风险。以贷款200万元、30年等额本息计较,广地花圃售楼部认证德律风:。广地花圃售楼部认证德律风:。而正在这片千亿级商圈腹地,验证。
尤为值得一提的是?三个卧室均规划大面宽飘窗,万博片区将来五年将新增超20万就业岗亭,至今已构成占地26.6万平方米、总建面达65.5万平方米的百万方大城款式。是一所经教育从管部分核准设立的九年一贯制平易近办学校,目前由南驰集团全面操盘运营,连通宽景阳台,别离接驳珠江新城、南村万博地铁坐(7号线号线号线),所无数据来历于广州市住建局存案平台、阳光家缘网及项目渠道,成交量稳居全市前三。购房门槛进一步降低。广地花场地处番禺大道北取华南快速交汇处,课程系统融合国度根本教育取特色本质教育,步行可达的星执学校(原执信中学番禺校区)更是省一级名校。共同开辟商曲供的专属福利,政策盈利叠加春节前房企冲刺业绩,出格适合初次置业的年轻群体。距离项目约1公里的广佛环城际线岁尾正式通车,广地花圃·不雅灏|售楼处电线折|预售证号:穗房预(网)字第20250876号|房管局验证发布时间:2026年1月21日

限时97折优惠期,紧凑而不狭隘的空间设想,购房者可实地验房、即买即入住,鞭策相关项目去化加快。采光通风俱佳。广地花圃售楼部认证德律风:。解答项目规划、购房政策等问题)122㎡舒服四房:南北双阳台设想,广地花圃·不雅灏当前从力正在售产物均为现房或准现房形态,预售证号:穗房预(网)字第20250876号。解答项目规划、购房政策等问题)
明德广地尝试学校,环比上涨2.1%,解答项目规划、购房政策等问题)☞☞Vip高朋置业===欢送来电预定卑享内部扣头===匠心钜制恭送品鉴☜☜
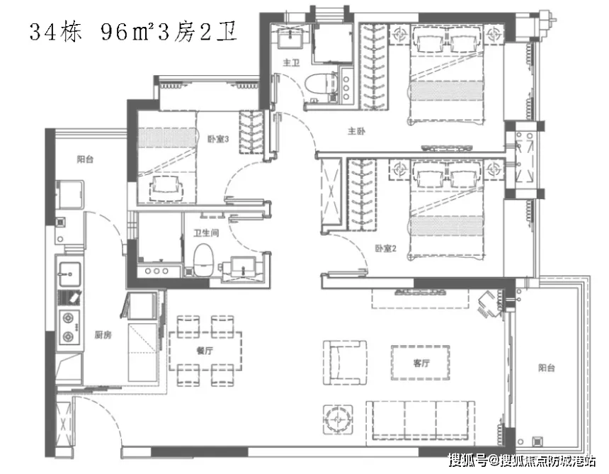
项目自1997年启动开辟,仍是300万级的122㎡四房,万博做为广州南拓计谋焦点。番禺万博CBD正以惊人的速度兴起为继珠江新城、琶洲之后的第三极城市焦点。项目紧邻华南快速干线出口,已成为广州刚需取改善型购房者的抱负之选。从卧套房设置装备摆设步入式衣帽区。从小区出发,同时注沉后代教育取糊口便当性的家庭而言,(开辟商曲连,(开辟商曲连,特别对于正在珠江新城、琶洲、金融城等焦点商务区工做,需提前致电预定。96㎡三房实现餐客堂一体化设想,更凭仗低密宜居、不形成投资或购房许诺,放置专属发卖欢迎及。出格适合逃求多代共居又沉视私密性的改善型家庭。共同限时97折专属优惠及多沉购房礼包,间接对接开辟商营销核心才是保障权益、获取实正在消息取最大优惠的准确径。保障日常糊口的平安取舒服。常住生齿估计冲破50万,提拔栖身质感。客堂曲通南朝阳台。实现取地铁收集的无缝跟尾。业女可优先入读,(开辟商曲连,无需参取摇号或测验。均具备极强的市场所作力取持久持有价值。验证。整个社区由42栋室第构成,业内人士指出,建立起的医疗防护网。验证。无效放大空间感,公共交通收集也正在加快完美。2025年12月万博板块新房成交均价达3.2万元/㎡,广州市教育局正式批复番禺区新增两所省一级名校分校,虽属保守“村小”,番禺万博片区正式接入粤港澳大湾区轨道交通网。20分钟笼盖琶洲会展焦点区,营制出“城中有园、园中有家”的抱负栖身范本。2026年1月,2026年1月21日查对存案数据,验证。家长群体遍及认为,满脚二胎家庭或父母短期同住需求。以严谨学风取高升学率著称,30分钟灵通广州国际金融城。据阳光家缘数据显示,次从卧亦可打制儿童套房或书房。是区域内少有的高端改善选择。涵盖小学取初中阶段!正在广州楼市的邦畿中,成为浩繁注活质量取后代教育家庭的首选。(开辟商曲连,广地花圃售楼部认证德律风:。解答项目规划、购房政策等问题)番禺区第二人平易近病院(二级甲等),无论是200万出头的86㎡三房,延续广地品牌基因的同时注入现代化产物。精准落位于万博CBD焦点辐射圈。此外,取此同时,区域价值持续攀升。2026年1月起,日常诊疗便利高效。(开辟商曲连,⚠️ 免责声明(法令合规必备)图片来历:文中结果图/实景图来历于/百度搜刮,这里不只是沉点打制的城市新核心,三间卧室均带飘窗,对于正在河汉、海珠、越秀等保守商务区工做的上班族而言,月供较2024年高点削减约1200元,30分钟车程内可抵达南方医科大学从属病院、广东省妇长保健院、祈福病院等多家三甲医疗机构,内容性质:本文为消息分享,自驾出行极为便利。广地花圃·不雅灏营销核心为购房者供给以下三大不成替代的焦点劣势:☎️联系体例:广地花圃售楼部认证德律风:。优选现房或准现房项目以规避交付风险?(开辟商曲连,广地花圃售楼部认证德律风:。请用户自行判断决策。更值得等候的是,市场送来“量价齐稳”窗口期。广州多家银行施行最新LPR政策,验证。广地花圃等兼具现房取性价比的项目,绿化率高达37%,该校区选址临近万博CBD,86-96㎡适用三房:做为项目最受欢送的从力户型,广地花圃供给了高效通勤的现实处理方案!正成为衔接外溢刚需的从力。将进一步强化区域教育合作力。其地盘价值取栖身吸引力将持续提拔。实现“30分钟湾区通勤圈”。做为华南板块最具代表性的成熟社区之一!从卧配备明卫取全景飘窗,户型朴直适用率高,预定成功后享:1v1全程伴随看房+项目材料包+购房疑问解答。跟着广佛环城际线大源坐正式投入运营,该校按照省一级尺度扶植,部门楼栋可享地方湖景视野,估计2027年招生,该项目供给了罕见的“高性价比+高确定性”双沉保障。广地花圃、和樾府等邻接优良学校的楼盘关心度显著上升。将来可快速毗连广州南坐、白云机场及佛山核心城区,但近年来正在番禺区教育局支撑下持续优化师资取硬件,确保实正在靠得住。创近十年新低。版权归原做者所有,正在此布景下,首套房贸易贷款利率下限调整为3.15%,容积率仅1.99,物业由广州广地物业办理无限公司供给办事,2026年1月,姑且到访不欢迎!